【横浜市南区中里4丁目6-10】★仲介手数料無料★(別所小学校・南が丘中学校)

-

神奈川県横浜市南区中里4丁目6-10

京急本線「弘明寺」駅徒歩17分

京急本線「上大岡」駅徒歩26分

京急本線「井土ヶ谷」駅徒歩30分

価格
-
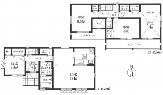
間取り/建物面積
-/-
所在地
神奈川県横浜市南区中里4丁目6-10
築年
2022年11月(予定)
交通

京急本線弘明寺」駅 徒歩17分

京急本線上大岡」駅 徒歩26分

京急本線井土ヶ谷」駅 徒歩30分

【横浜市南区中里4丁目6-10】★仲介手数料無料★(別所小学校・南が丘中学校)の基本情報

物件名
【横浜市南区中里4丁目6-10】★仲介手数料無料★(別所小学校・南が丘中学校)
価格
-
建物面積
-
土地面積
-(-)
築年月
2022年11月(予定)
総戸数
-
所在地
神奈川県横浜市南区中里4丁目6-10
交通

京急本線弘明寺」駅 徒歩17分

京急本線上大岡」駅 徒歩26分

京急本線井土ヶ谷」駅 徒歩30分

【横浜市南区中里4丁目6-10】★仲介手数料無料★(別所小学校・南が丘中学校)の詳細情報

設備条件
  • 閑静な住宅地
設備(その他)
    -
土地権利
所有権
国土法届出
不要
用途地域
第一種低層住居専用
取引態様
仲介
引渡し
2022年12月上旬
備考
【仲介手数料無料キャンペーン】
コノミハウジングは創業10年目として 、日頃からの感謝の気持ちを込めまして、ご購入のお客様に仲介手数料を最大無料にてご紹介します。

<コノミハウジングで物件を購入した場合…>

3,000万円の物件・・・1,036,800円

4,000万円の物件・・・1,360,800円

5,000万円の物件・・・1,716,000円

6,000万円の物件・・・2,046,000円   

一般的な不動産会社で購入するよりもお得です。
当社ホームページに掲載されていない物件でも、
横浜市内の物件なら仲介手数料無料でご案内可能です。

◆HOME'S,アットホーム,SUUMO,オウチーノ等の掲載物件もOK!

インターネットのサイト、不動産チラシ、近所のオープンルームでとても気になる物件がある。購入を考えている不動産があるけど、できるだけ諸経費を安く済ませたい。などなどお気軽にご連絡下さい。

スーモやホームズなどのホームページやチラシなどでみつけた気になる物件の URL、画像、チラシの写真などをLINEやメールに貼り付けて、お問い合わせください。 物件の情報だけでも大丈夫です。ご希望の物件の仲介手数料無料を すぐに担当スタッフよりご返信いたします! お得にマイホームが購入できるチャンスを是非ご利用ください ♪

宅建とFP資格者が契約~引渡しまで一貫して対応します。
頭金0円での住宅ローンもお任せ下さい。
物件の内覧や住宅ローンのご相談などお気軽にお問合せ頂ければと思います。

【横浜市南区中里4丁目6-10】★仲介手数料無料★(別所小学校・南が丘中学校)のコメント(おすすめポイント)

★仲介手数料無料★南区中里4丁目エリアの閑静な住宅街に立地した新築戸建住宅のご紹介です。明るく開放感のある南西角地の4LDKはファミリーにおすすめ。1階約18帖のLDKは対面式キッチン・リビング床暖房採用で家族揃ってくつげる空間。室内は浴室乾燥機やエコジョーズなど暮らす人を考えた設備・仕様。ゆとりのある敷地面積を生かし、カースペース2台並列駐車可能(車種による)、広いお庭付きです。どうぞお気軽にお問い合わせ下さい。

【横浜市南区中里4丁目6-10】★仲介手数料無料★(別所小学校・南が丘中学校)

お気軽にお問い合わせください

無料お問い合わせ

コノミハウジング

045-594-6613

9:00~19:00

(休:毎週水曜日(第1・3火曜日))