シティウインズ横浜パークビスタ
閑静な街並みの高台に佇むマンションです。






相鉄本線「和田町」駅より徒歩圏内のお住まいです。
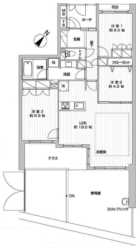
お部屋はファミリーにもおすすめの3LDK。
お子様を見ながら家事が可能な対面キッチンは、
ご家族とコミュニケーションを取りながら楽しく過ごせます。
全居室収納付きで収納スペースも豊富。生活空間を有効的に使えそうです。
機能的なシステムキッチンや24時間セキュリティ、
浴室換気乾燥機、床暖房などの充実した設備も魅力のお住まいです。
お気軽にお問い合わせください。






相鉄本線「和田町」駅より徒歩圏内のお住まいです。
お部屋はファミリーにもおすすめの3LDK。
お子様を見ながら家事が可能な対面キッチンは、
ご家族とコミュニケーションを取りながら楽しく過ごせます。
全居室収納付きで収納スペースも豊富。生活空間を有効的に使えそうです。
機能的なシステムキッチンや24時間セキュリティ、
浴室換気乾燥機、床暖房などの充実した設備も魅力のお住まいです。
お気軽にお問い合わせください。
ご家族とのコミュニケーションが取りやすいお住まいです。
保土ヶ谷区物件情報
約21帖の広々LDKを配した間取りで、風通りも良く、 明るい陽射しもたっぷりのお住まいです。
保土ヶ谷区物件情報
愛車に嬉しいビルドインガレージ付きのお住まいです。
保土ヶ谷区物件情報
都心につながる相鉄線「和田町」駅より徒歩約4分のお住まいです。
保土ヶ谷区物件情報
地下車庫とスカイバルコニーのあるお住まいです。
保土ヶ谷区物件情報
ランドマークタワーを望め、緑も多く、 落ち着いた雰囲気のお住まいです。
保土ヶ谷区物件情報