いずみプラザ保土ヶ谷弐番館
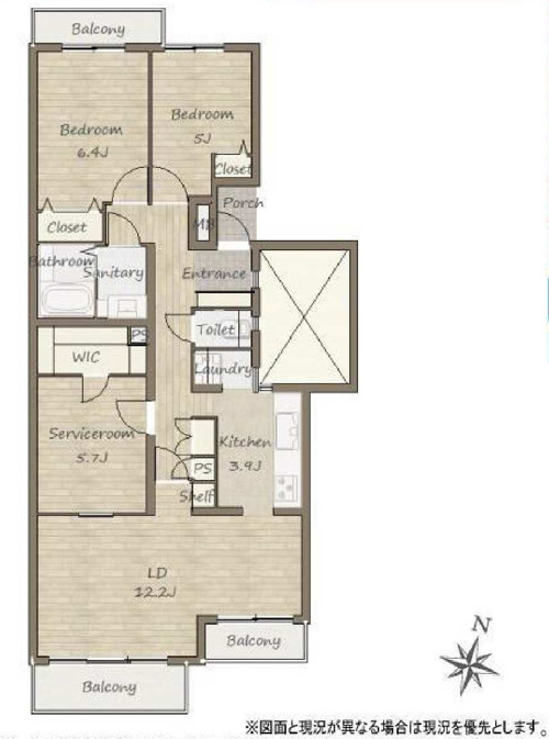
ゆとりの約80.58㎡の2SLDKのマンションのご紹介です。
最上階、南東向きで日当たり、眺望、風通し良好です。
キッチン横に洗濯機置場配置など、家事動線を考慮した間取りです。
食洗機付きのシステムキッチンや浴室暖房乾燥機、
季節物の収納に便利なウォークインクローゼット等暮らし易い設備も
充実し生活環境良好です。
ペット飼育が可能ですので大切なペットと一緒に暮らせます。
学校やスーパーも近く子育てにも適しています。
神奈川県横浜市保土ケ谷区権太坂3丁目9―2
横須賀線「東戸塚」駅 バス8分 境木中学校学前 停歩5分




玄関周りスッキリです。



トースターなどの調理家電もすべてキッチンの中に配置することができます。





ご家族揃ってゆったりとお寛ぎいただけます。



季節物もスッキリ片付きそうです。




お問い合わせはこちら
↓ ↓ ↓ ↓ ↓ ↓ ↓ ↓ ↓
