3件 8戸
-
新築
4,480万円~5,080万円
100.06㎡~110.91㎡ (3LDK+S(納戸)~4LDK) /予定 /2階建
- 公共下水
-
新築
3,990万円
12月1日 値下げ
91.08㎡ (3LDK) /新築 /2階建
- 閑静な住宅地
- 耐震構造
- 公共下水
■□仲介手数料0円対象物件□■
~ おすすめポイント ~
◆瀬谷区阿久和西3丁目の全2棟新築分譲住宅
◆18帖以上のLDKは浄水器付対面キッチン採用
◆家族の顔が見えるリビングイン階段
◆段差を解消したフラットフロア仕様
◆階段・浴室・トイレに手摺付きのためお子様や高齢のご家族も安心です
◆断熱性・遮音性に優れるペアガラスサッシを使用
~ 仲介手数料無料の0仲介 ~
コノミハウジングは新築戸建てを仲介手数料無料でご紹介!建売会社からの仲介手数料のみで売買取引を行っています。また当ホームページに掲載されていない物件でも仲介手数料無料でご紹介可能な物件は多々ございます。気になる物件がございましたら一度お問い合せを頂けましたらと思います。
◆お客様からのの質問をブログにて掲載しております。
Q:前に一度見た物件ですが大丈夫ですか?
A:再度のご見学ですか?ご購入のお申込みですか?はい。もちろんどちらとも大丈夫です。ご見学は何度でもご納得するまでご確認くださいませ。
また他社さんに案内してもらった物件でも大丈夫ですよ。どこの不動産会社に仲介をお願いするのかはお客様の自由です。担当者さんと相性が合わないという話やサービスの良し悪しなどもありますので不動産会社の乗り換えは決しておかしなことではございません。高い買い物ですし遠慮していては損をしてしまいますよ。特に仲介手数料の有り無しは仲介会社を乗り換えるに足る理由の1つといえると思います。 -
新築
5,399万円~5,549万円
12月11日 値下げ
105.91㎡~106.80㎡ (3LDK) /新築 /2階建
- 閑静な住宅地
- 公共下水
■□仲介手数料0円対象物件□■
~ おすすめポイント ~
◆瀬谷区阿久和西2丁目の全3棟新築分譲住宅
◆住環境良好な第1種低層住居専用地域
◆南向きの明るいLDKは食洗機付き対面キッチン採用
◆家族間のコミュニケーションもスムーズなリビングイン階段
◆寒い季節も足元ポカポカのLD床暖房
◆動線に配慮した中央バルコニー
◆共有ウォークインクローゼットでスッキリ収納
~ 仲介手数料無料の0仲介 ~
コノミハウジングは新築戸建てを仲介手数料無料でご紹介!建売会社からの仲介手数料のみで売買取引を行っています。また当ホームページに掲載されていない物件でも仲介手数料無料でご紹介可能な物件は多々ございます。気になる物件がございましたら一度お問い合せを頂けましたらと思います。
◆お客様からのの質問をブログにて掲載しております。
Q:アフターサービスが不安?
A:物件のアフターサービスは、仲介した不動産会社ではなく、売主がおこなうものです。 購入後の保証やメンテナンスは売主がおこなう義務があると、法律で定められています。そのため仲介手数料が無料であることと、アフターサービスの充実度にはまったく関係がありません。 どの不動産会社で購入しても同じ保証が受けられますので、仲介手数料無料でも安心して購入できます。
また新築一戸建ては法律によって必ず10年保証が付いており、売主が倒産した場合に備えて保険への加入も義務付けられているので、より安心です。
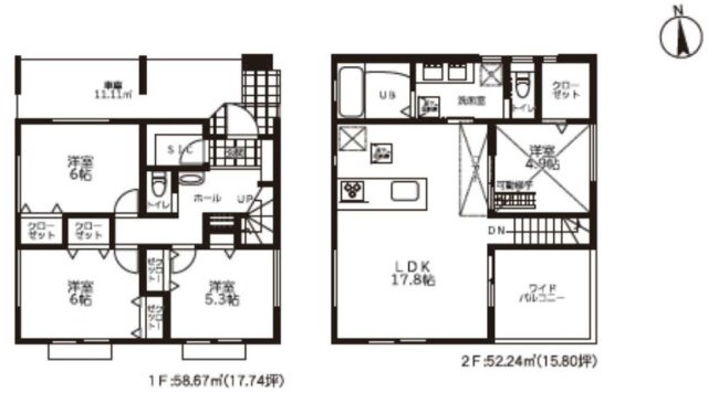
◆2階に配したLDKは広々約17.8帖
◆開放感ある勾配天井+ロフト
◆水回りを2階に集約した間取設計
◆カースペース並列2台
◆1階ホールは大理石調フロア
◆EV用屋外コンセント設置
◆宅配ボックス付ポスト
◆ZEH水準住宅仕様・一次エネルギー等級6相当