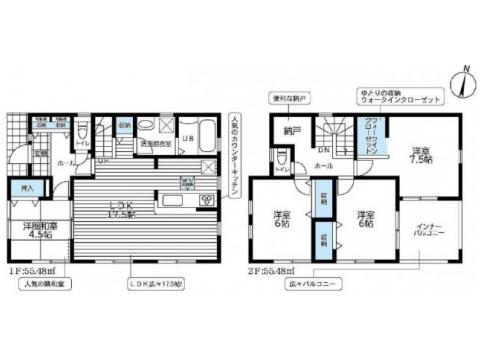
土地約43坪、建物約33坪のゆったりとしたお住まい

土地約43坪、建物約33坪のゆったりとしたお住まいのご紹介です。















横浜市保土ケ谷区仏向町
相鉄本線「和田町」駅 徒歩20分
●弊社ではしつこい電話営業や突然の訪問等は一切行っておりません。
お客様のペースでストレスフリーな対応を心がけておりますので、
どうぞお気軽にお問合せください。
~~現地案内会のお知らせ~~
■平日・休日問わずまたお仕事帰りでも、物件のご見学・ご相談承ります。
ご遠慮なくお申し付け下さい。
■現地のご案内以外に周辺施設や近隣情報も合わせてご案内ご説明させて頂き
ます。
■「当社へのご来場」・「ご自宅への送迎」・「現地付近でのお待ち合わせ」
お客様のご都合に合わせます。
~~住宅ローン無料相談会開催中~~
■住宅ローン相談会 随時開催中!
※私たちにとって一番条件の良い銀行は?
※固定金利と変動金利どちらを選べば良い?金利の種類と特徴は?
※頭金・自己資金がなくても大丈夫?
※住宅ローンはいくらまで借りられるのか?無理のない返済計画は?
※現在カーローンなどの借入があるけど大丈夫?
※転職して間もないのですが?
※自営業ですが問題ないですか?
お客様のライフスタイルに合わせた資金計画をシミュレーションします。
その他、将来設計を考えた資金計画を専門のファイナンシャルプランナーが
ご説明させて頂きます。

